
NATIONAL MUSEUM OF WORLD WRITING
In the Museum of World Writing in Incheon, South Korea, the intention is to create doubt as to the building’s origin-- its scale, type, and time. Rather than beginning with programmatic blocks or other reductive base elements of architecture, chunks from medieval castles and keeps are extracted, rotated, scaled, and otherwise altered, producing a set of strange new model parts.
Read More
Landing and Undercutting
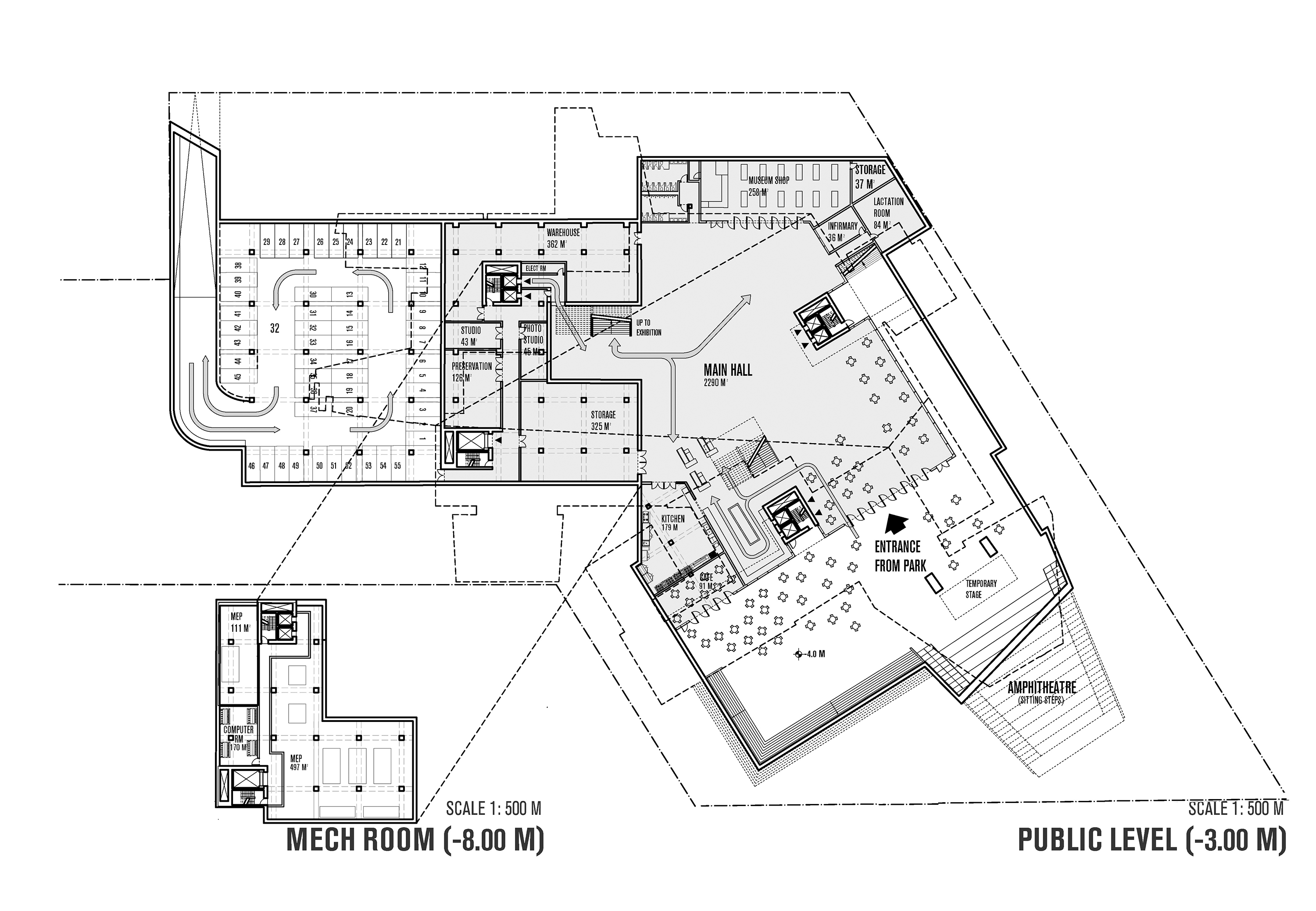
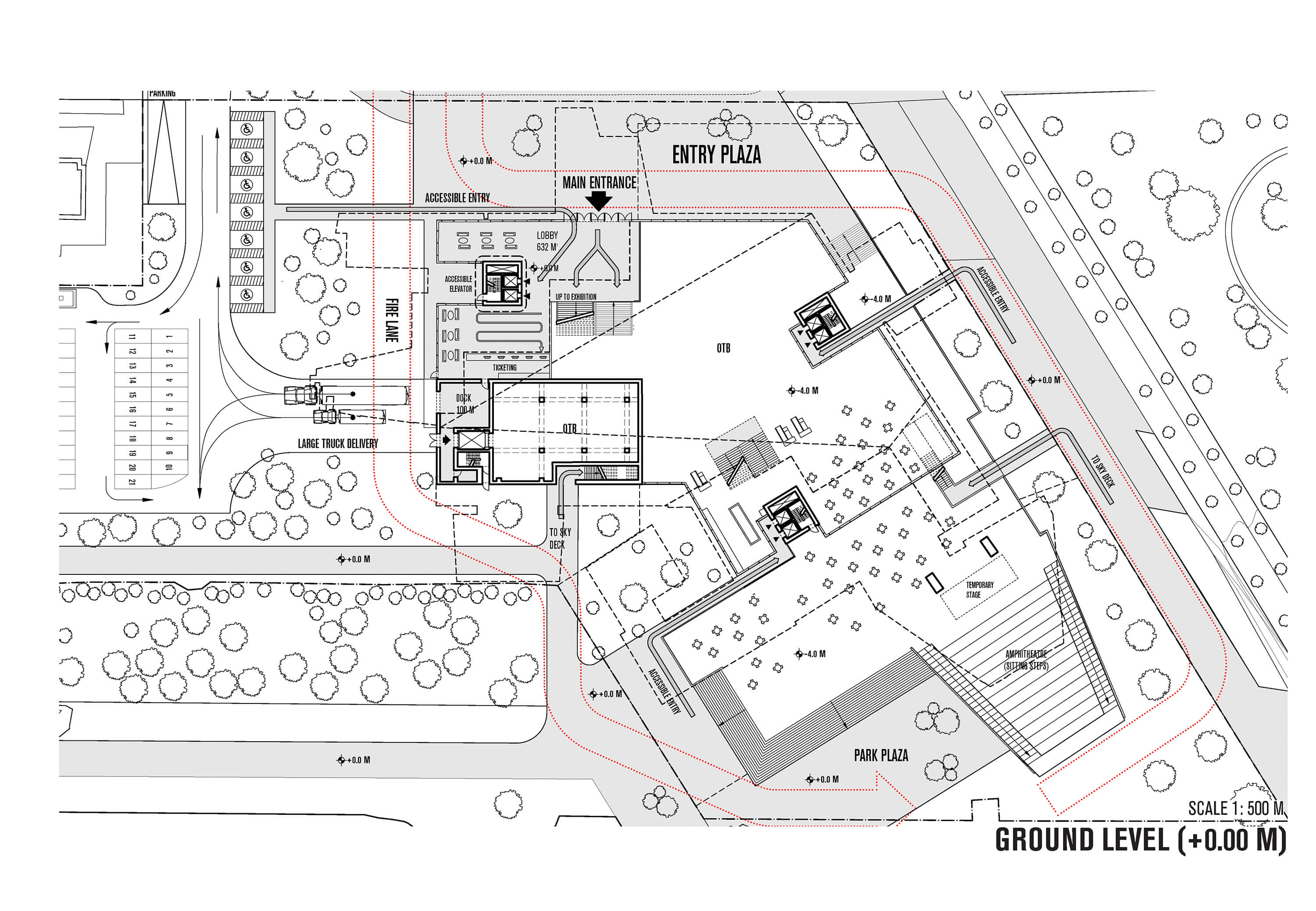
The heavy earth-to-building connection that characterizes medieval fortifications is contradicted by the building’s deeply undercut soffit, as if the project were about to land rather than rising from the earth. The perimeter figures are sliced off along with their container, creating visual continuity between all the elements, leaving patterns of strange joints across the soffit. Underneath the building massing is a glazed multifunctional hall that opens up to the Park, drawing people inside. The garden rooftop can be accessed from the interior or from stairs embedded in, and zig-zagging up, the exterior walls from the park.
High-Contrast Interiority
The chunky figures penetrate deep into the interior of their container, although it is impossible to discern their true size and extents from the exterior. Inside the container, a large cavernous space is created for temporary exhibitions, featuring smaller mezzanine galleries atop the figures with views over the scene, and circulation embedded into thick walls. Permanent exhibition spaces, located within the chunky figures, are tall and highly differentiated, creating opportunities for highlighting important works in the collection. The extreme differences in scale and orientation of interior spaces produces discrete experiences rather than continuous ones.
LOCATION
Incheon, South Korea
TYPE
Fine Art Museum
YEAR
2017
FLOOR AREA
105,000 SM
CLIENT
Municipal Government of Incheon
DESIGN TEAM
PROJECT TEAM


Rather than beginning with programmatic blocks or other reductive base elements of architecture, chunks from medieval castles and keeps are extracted, rotated, scaled, and otherwise altered, producing a set of strange new model parts.












