HARE HOUSE
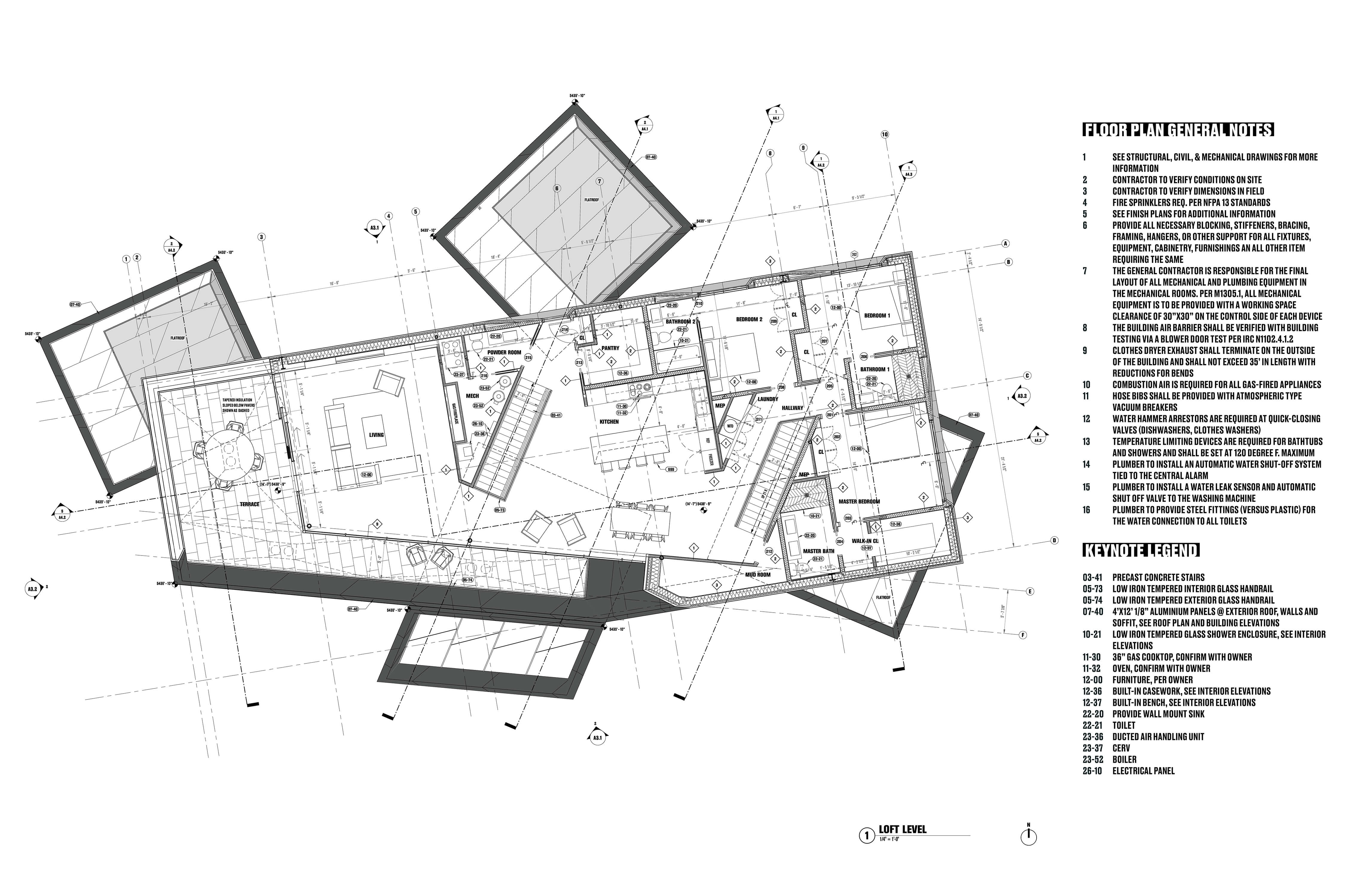
This house, located in the expansive Ogden Valley in Utah, is based on a set of discrete, chunky masses arranged loosely into a two-level house. Using our “throw it down” method, we focused on fast, playful compositions using a set of parts. Parts were moved, copied, scaled, or rotated, and even rolled like dice, but never fused together or deformed. The outcome appears provisional, as if it might be re-arranged later, like the megaliths of Stonehenge.
Read More
The parts, once assembled, are glance cut to create large apertures. These apertures stand in contrast to human-scaled windows, and feature inset glazed surfaces to provide decks. Black, white, and grey lines and fills emphasize this cut and the overall silhouette of the house, creating a cartoon-like effect and visual continuity across parts.
The megalithic massing, combined with the cartoon graphics (a.k.a. tattoos), creates scale indeterminacy. The house appears to exist simultaneously in two worlds-- the realm of the monumental and the realm of the miniature model. It also appears to be both ancient and contemporary, which creates a sense of mystery.
Controlling scale and time are two of an architect’s greatest superpowers. But these powers are often left dormant, producing architecture that reinforces the human, medium scale of existence. Today, at the dawn of the posthuman era, architecture can no longer simply reinforce the human world—it needs to reset and tap into the vast and miniature scales of existence all around us, becoming ecological in the broadest, cosmological sense.
LOCATION
Eden, Utah
TYPE
Single Family Residence + Office
YEAR
100% Design Development: 2021
FLOOR AREA
4,500 SF
CLIENT
Garth and Tara Hare
DESIGN TEAM
PROJECT TEAM



Using our “throw it down” method, we focused on fast, playful compositions using a set of parts.




The megalithic massing, combined with the cartoon graphics (a.k.a. tattoos), creates scale indeterminacy. The house appears to exist simultaneously in two worlds-- the realm of the monumental and the realm of the miniature model.![]()





